Wierden – Bedrijvenstraat 7a

€ 649.000,- k.k.

Gelegen op een uitstekende locatie in Wierden bieden wij dit multifunctionele bedrijfspand aan voor de verhuur en verkoop.

Het bedrijfspand is gelegen op bedrijventerrein ‘Violenhoek’ en beschikt over eigen grond. Het object is gelegen op een perceel van 585 m².

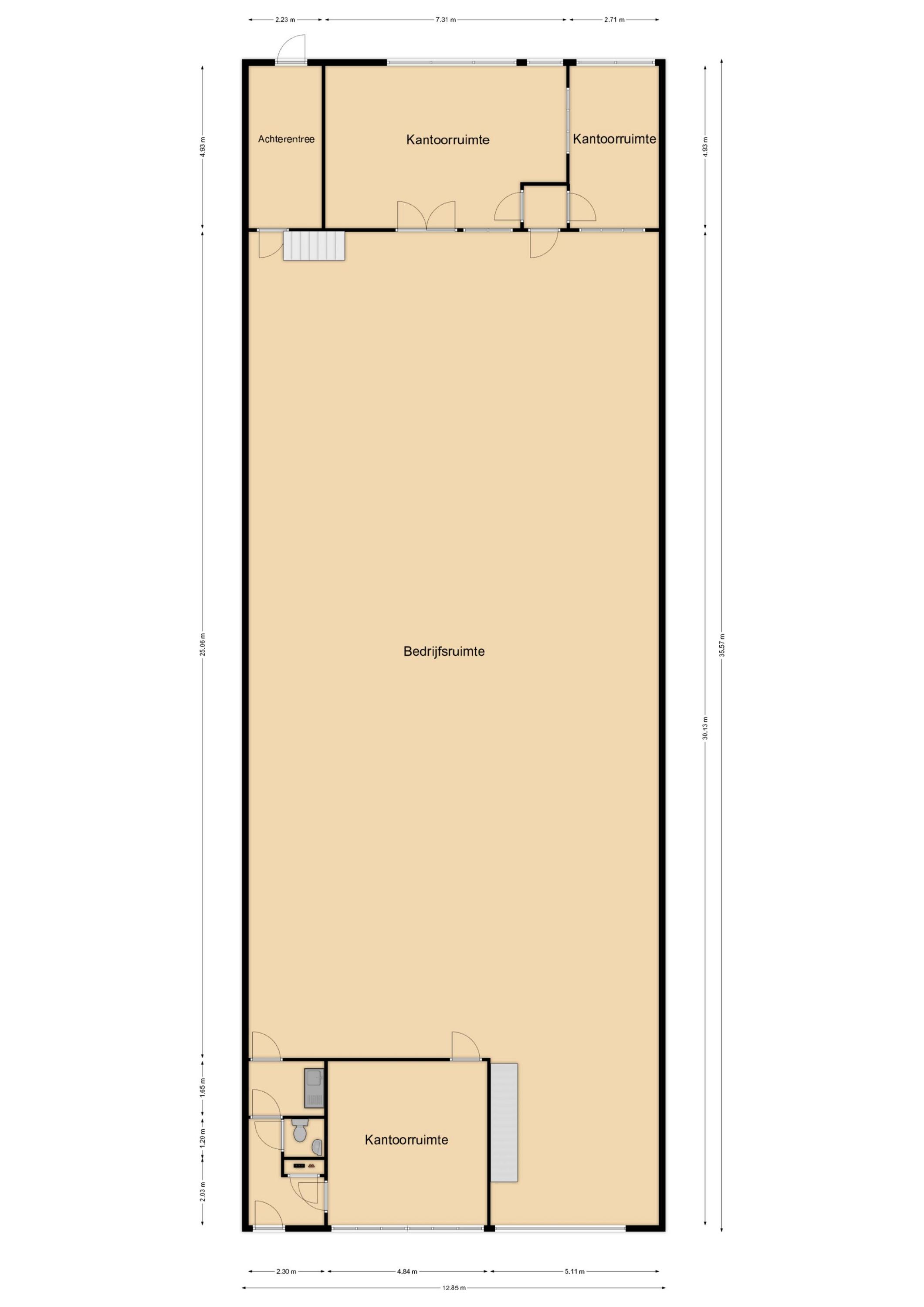
Het totaal aantal verhuurbare vierkante meters is circa 754 m², waarvan:
Bedrijfshal: ca. 331 m²
Kantoorruimte begane grond: ca. 99 m²
Kantoorruimte verdieping: ca. 99 m²
Entresolvloer: ca. 225 m²

Indeling:
Overdekte entree met hal, toilet, pantry, meterkast, kantoorruimte, bedrijfshal met toegang tot kantine op de verdieping, bedrijfshal v.v. entresolvloer. Aan de achterzijde is het object ingericht met een wasruimte, kantoorruimtes en archiefruimte.

Voorzieningen:
– Entresolvloer betreft een staalconstructie met stevige betonvloer.
– Diverse kantoorruimtes, grotendeels v.v. vloerverwarming en airco.
– V.v. toiletruimtes, wasruimte en kantine
– Verwarming middels cv-installatie (kantoren) en gasheater (bedrijfshal)
– Deels v.v. ledverlichting
– V.v. alarmsysteem
– Eigen grond met ruim voldoende parkeermogelijkheden
– Bedrijfshal v.v. elektrische overheaddeur

Bereikbaarheid:
Het bedrijfspand is goed bereikbaar. Wierden is gelegen aan de A35, N35 en N36. Daarnaast is het centraal station van Wierden op loopafstand te bereiken.

Huurprijs:
Het pand wordt te huur aangeboden voor € 45.000,- per jaar excl. BTW.

Koopprijs:
Het pand wordt te koop aangeboden voor een vraagprijs van € 649.000,- kosten koper.

Voorwaarden:
Bij verhuur van het pand is het uitgangspunt dat er een huurtermijn van 5+5 jaar wordt afgesproken. Tevens dient de huurder een waarborgsom te storten aan verhuurder van 2 maandhuren. Bij verkoop dient de koper een waarborgsom te storten bij de notaris of een bankgarantie af te geven ter grootte van 10% van de koopsom.

Bestemmingsplan:
Voor dit object geldt het bestemmingsplan “Wierden Dorp” met enkelbestemming “Bedrijventerrein” en als functieaanduiding “bedrijf tot en met categorie 3.2”. Voor meer informatie omtrent het bestemmingsplan kunt u contact opnemen met ons kantoor.

Aanvaarding:
Per direct beschikbaar.

Onze collega Olaf kan u alles vertellen over dit object

Olaf Weghorst

Makelaar/taxateur RMT, directeur

Bel ons op (0546) 57 33 32
Afbeelding van

Specificaties

Brochure downloaden

Overdracht

  • Status

    Beschikbaar

Bouw

  • Jaar

    1999

Bestemming

  • Hoofdbestemming

    Bedrijfsruimte

Panden in de buurt

€ 1.125,- p.p.m.

Wierden – Molenbeltsweg 2

€ 1.125,- p.p.m.

Wierden – Molenbeltsweg 10

€ 17.000,- p.p.j.

Wierden – Marktstraat 4a

€ 245.000,- k.k.

Wierden – Weusteweg 1

Kaart van de omgeving